Andreas Michel
Ballenberg West
Das Freilichtmuseum Ballenberg benötigt ein neues Gesamtkonzept für seinen Haupteingang. Dieser soll sich als repräsentatives Element in die Landschaft integrieren und mit neuen Depoträumen, Werkhofflächen und einem Parkhaus ergänzt werden. Der erarbeitete Vorschlag vereint all diese Anforderungen in einem Objekt, das sich entlang des Waldrandes positioniert. Nordseitig entsteht ein gedeckter Ankunftsort, der den öffentlichen Verkehr und die höhergelegenen Parkdecks über ein Showlager erschliesst. Südseitig setzt das Objekt einen Grundakkord auf dem neuen Museumsplatz, der als gestalteter Freiraum mit den bestehenden Gebäuden zu einem musealen Gesamtensemble verwoben werden soll.
Ballenberg West
Das Freilichtmuseum Ballenberg benötigt ein neues Gesamtkonzept für seinen Haupteingang. Dieser soll sich als repräsentatives Element in die Landschaft integrieren und mit neuen Depoträumen, Werkhofflächen und einem Parkhaus ergänzt werden. Der erarbeitete Vorschlag vereint all diese Anforderungen in einem Objekt, das sich entlang des Waldrandes positioniert. Nordseitig entsteht ein gedeckter Ankunftsort, der den öffentlichen Verkehr und die höhergelegenen Parkdecks über ein Showlager erschliesst. Südseitig setzt das Objekt einen Grundakkord auf dem neuen Museumsplatz, der als gestalteter Freiraum mit den bestehenden Gebäuden zu einem musealen Gesamtensemble verwoben werden soll.
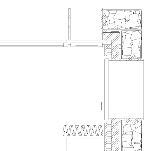
Ballenberg West
Pavillon im Park
Das Hochschulgebiet Zürich Zentrum wird als Generationenprojekt zu einem neuen Stadtraum transformiert, in dessen Zentrum ein kleines Objekt als Snackbar fungiert. Das Objekt erhebt keinen Anspruch auf formale Integrität, sondern wendet sich vollkommen seiner Aufgabe zu. Die plastisch durchdrungene Schale spannt einen überdachten Schwellenraum auf, der den Intimitätsgradient zwischen Innen und Aussen definiert. Sobald ein Subjekt diesen Raum durchschreitet, wird es von einer räumlichen Spannung erfasst, die sich erst im zentralen Lichtkegel des Objekts wieder aufzulösen scheint.
Pavillon im Park
Das Hochschulgebiet Zürich Zentrum wird als Generationenprojekt zu einem neuen Stadtraum transformiert, in dessen Zentrum ein kleines Objekt als Snackbar fungiert. Das Objekt erhebt keinen Anspruch auf formale Integrität, sondern wendet sich vollkommen seiner Aufgabe zu. Die plastisch durchdrungene Schale spannt einen überdachten Schwellenraum auf, der den Intimitätsgradient zwischen Innen und Aussen definiert. Sobald ein Subjekt diesen Raum durchschreitet, wird es von einer räumlichen Spannung erfasst, die sich erst im zentralen Lichtkegel des Objekts wieder aufzulösen scheint.
Pavillon im Park
Das Hochschulgebiet Zürich Zentrum wird als Generationenprojekt zu einem neuen Stadtraum transformiert, in dessen Zentrum ein kleines Objekt als Snackbar fungiert. Das Objekt erhebt keinen Anspruch auf formale Integrität, sondern wendet sich vollkommen seiner Aufgabe zu. Die plastisch durchdrungene Schale spannt einen überdachten Schwellenraum auf, der den Intimitätsgradient zwischen Innen und Aussen definiert. Sobald ein Subjekt diesen Raum durchschreitet, wird es von einer räumlichen Spannung erfasst, die sich erst im zentralen Lichtkegel des Objekts wieder aufzulösen scheint.
Pavillon im Park
Das Hochschulgebiet Zürich Zentrum wird als Generationenprojekt zu einem neuen Stadtraum transformiert, in dessen Zentrum ein kleines Objekt als Snackbar fungiert. Das Objekt erhebt keinen Anspruch auf formale Integrität, sondern wendet sich vollkommen seiner Aufgabe zu. Die plastisch durchdrungene Schale spannt einen überdachten Schwellenraum auf, der den Intimitätsgradient zwischen Innen und Aussen definiert. Sobald ein Subjekt diesen Raum durchschreitet, wird es von einer räumlichen Spannung erfasst, die sich erst im zentralen Lichtkegel des Objekts wieder aufzulösen scheint.
Pavillon im Park
Das Hochschulgebiet Zürich Zentrum wird als Generationenprojekt zu einem neuen Stadtraum transformiert, in dessen Zentrum ein kleines Objekt als Snackbar fungiert. Das Objekt erhebt keinen Anspruch auf formale Integrität, sondern wendet sich vollkommen seiner Aufgabe zu. Die plastisch durchdrungene Schale spannt einen überdachten Schwellenraum auf, der den Intimitätsgradient zwischen Innen und Aussen definiert. Sobald ein Subjekt diesen Raum durchschreitet, wird es von einer räumlichen Spannung erfasst, die sich erst im zentralen Lichtkegel des Objekts wieder aufzulösen scheint.
Umbau in Matten
Das Elternhaus in Matten bei Interlaken ist ein heterogenes Gebilde, das sich aus wiederholten Umbauprozessen zusammensetzt. Das zur Metzgerei umfunktionierte Blockhaus entspricht nur partiell den aktuellen Wohnbedürfnissen. Besonders unbehaglich sind die abgenutzten Räume, deren Raumhöhe durch den Dachstuhl begrenzt werden. Im Zuge einer Intervention wurde dieser Abgetragen und die daraus resultierenden Räume mit neuen Raumverkleidungen ausgestattet.
Umbau in Matten
Das Elternhaus in Matten bei Interlaken ist ein heterogenes Gebilde, das sich aus wiederholten Umbauprozessen zusammensetzt. Das zur Metzgerei umfunktionierte Blockhaus entspricht nur partiell den aktuellen Wohnbedürfnissen. Besonders unbehaglich sind die abgenutzten Räume, deren Raumhöhe durch den Dachstuhl begrenzt werden. Im Zuge einer Intervention wurde dieser Abgetragen und die daraus resultierenden Räume mit neuen Raumverkleidungen ausgestattet.
Umbau in Matten
Das Elternhaus in Matten bei Interlaken ist ein heterogenes Gebilde, das sich aus wiederholten Umbauprozessen zusammensetzt. Das zur Metzgerei umfunktionierte Blockhaus entspricht nur partiell den aktuellen Wohnbedürfnissen. Besonders unbehaglich sind die abgenutzten Räume, deren Raumhöhe durch den Dachstuhl begrenzt werden. Im Zuge einer Intervention wurde dieser Abgetragen und die daraus resultierenden Räume mit neuen Raumverkleidungen ausgestattet.
Zeughaus Zürich
Das Kasernenareal der Stadt Zürich ist seit Jahrzehnten ein grosses Planungsdebakel. Der aktuelle Masterplan mündete auf politischer Ebene in einem kontroverses Gedankenkonstrukt, das nur mit einer neuen Vision aufgelöst werden kann. Diese muss die Individualbedürfnisse miteinander vereinen, damit das Areal zu einem Ort der kulturellen Lebendigkeit transformiert werden kann. Dies soll gelingen, in dem das Zeughaus geschossübergreifend zu einer belebten Kommunikationslandschaft umstrukturiert wird. Künftig soll sich dort das kulturelle Erbgut des Langstrassenquartiers ansiedeln können, welches durch die Gentrifizierung sukzessive aus dem Stadtraum verdrängt wird. Die angrenzende Kasernenwiese wird durch einen grosszügigen Baumgarten abgelöst, der als städtebaulicher Akzent den Aufbruch ein neues Zeitalter symbolisiert.
Zeughaus Zürich
Das Kasernenareal der Stadt Zürich ist seit Jahrzehnten ein grosses Planungsdebakel. Der aktuelle Masterplan mündete auf politischer Ebene in einem kontroverses Gedankenkonstrukt, das nur mit einer neuen Vision aufgelöst werden kann. Diese muss die Individualbedürfnisse miteinander vereinen, damit das Areal zu einem Ort der kulturellen Lebendigkeit transformiert werden kann. Dies soll gelingen, in dem das Zeughaus geschossübergreifend zu einer belebten Kommunikationslandschaft umstrukturiert wird. Künftig soll sich dort das kulturelle Erbgut des Langstrassenquartiers ansiedeln können, welches durch die Gentrifizierung sukzessive aus dem Stadtraum verdrängt wird. Die angrenzende Kasernenwiese wird durch einen grosszügigen Baumgarten abgelöst, der als städtebaulicher Akzent den Aufbruch ein neues Zeitalter symbolisiert.
Zeughaus Zürich
Zeughaus Zürich
Das Kasernenareal der Stadt Zürich ist seit Jahrzehnten ein grosses Planungsdebakel. Der aktuelle Masterplan mündete auf politischer Ebene in einem kontroverses Gedankenkonstrukt, das nur mit einer neuen Vision aufgelöst werden kann. Diese muss die Individualbedürfnisse miteinander vereinen, damit das Areal zu einem Ort der kulturellen Lebendigkeit transformiert werden kann. Dies soll gelingen, in dem das Zeughaus geschossübergreifend zu einer belebten Kommunikationslandschaft umstrukturiert wird. Künftig soll sich dort das kulturelle Erbgut des Langstrassenquartiers ansiedeln können, welches durch die Gentrifizierung sukzessive aus dem Stadtraum verdrängt wird. Die angrenzende Kasernenwiese wird durch einen grosszügigen Baumgarten abgelöst, der als städtebaulicher Akzent den Aufbruch ein neues Zeitalter symbolisiert.
Zeughaus Zürich
Das Kasernenareal der Stadt Zürich ist seit Jahrzehnten ein grosses Planungsdebakel. Der aktuelle Masterplan mündete auf politischer Ebene in einem kontroverses Gedankenkonstrukt, das nur mit einer neuen Vision aufgelöst werden kann. Diese muss die Individualbedürfnisse miteinander vereinen, damit das Areal zu einem Ort der kulturellen Lebendigkeit transformiert werden kann. Dies soll gelingen, in dem das Zeughaus geschossübergreifend zu einer belebten Kommunikationslandschaft umstrukturiert wird. Künftig soll sich dort das kulturelle Erbgut des Langstrassenquartiers ansiedeln können, welches durch die Gentrifizierung sukzessive aus dem Stadtraum verdrängt wird. Die angrenzende Kasernenwiese wird durch einen grosszügigen Baumgarten abgelöst, der als städtebaulicher Akzent den Aufbruch ein neues Zeitalter symbolisiert.
Burgdorf Buchmatt
Die Stadt Burgdorf leidet unter dem permanenten Mobilitätszuwachs und will mit dem Projekt «Emmentalwärts» eine grosszügige Verkehrssanierung durchführen. Davon betroffen ist auch das industrielle Buchmattquartier, das ohne attraktive Aufenthaltsräume allmählich zum Durchgangsort verkommt. Diese Defizite werden durch die kruden Bahnunterführungen nicht aufgehoben, sondern zusätzlich verschärft. Als Gegenvorschlag wurde eine städtebauliche Vision für das Quartier erarbeitet, die aus einer vollumfänglichen Betrachtung resultiert. Sie sieht vor, die geplante Strassenunterführung in einem grösseren Ausmass zu realisieren. Die dadurch entstehenden Aufenthaltsräume vernetzen sich mit dem industriellen Stadtpark zum Epizentrum eines belebten Quartiers.
Burgdorf Buchmatt
Burgdorf Buchmatt
Die Stadt Burgdorf leidet unter dem permanenten Mobilitätszuwachs und will mit dem Projekt «Emmentalwärts» eine grosszügige Verkehrssanierung durchführen. Davon betroffen ist auch das industrielle Buchmattquartier, das ohne attraktive Aufenthaltsräume allmählich zum Durchgangsort verkommt. Diese Defizite werden durch die kruden Bahnunterführungen nicht aufgehoben, sondern zusätzlich verschärft. Als Gegenvorschlag wurde eine städtebauliche Vision für das Quartier erarbeitet, die aus einer vollumfänglichen Betrachtung resultiert. Sie sieht vor, die geplante Strassenunterführung in einem grösseren Ausmass zu realisieren. Die dadurch entstehenden Aufenthaltsräume vernetzen sich mit dem industriellen Stadtpark zum Epizentrum eines belebten Quartiers.
Burgdorf Buchmatt
Die Stadt Burgdorf leidet unter dem permanenten Mobilitätszuwachs und will mit dem Projekt «Emmentalwärts» eine grosszügige Verkehrssanierung durchführen. Davon betroffen ist auch das industrielle Buchmattquartier, das ohne attraktive Aufenthaltsräume allmählich zum Durchgangsort verkommt. Diese Defizite werden durch die kruden Bahnunterführungen nicht aufgehoben, sondern zusätzlich verschärft. Als Gegenvorschlag wurde eine städtebauliche Vision für das Quartier erarbeitet, die aus einer vollumfänglichen Betrachtung resultiert. Sie sieht vor, die geplante Strassenunterführung in einem grösseren Ausmass zu realisieren. Die dadurch entstehenden Aufenthaltsräume vernetzen sich mit dem industriellen Stadtpark zum Epizentrum eines belebten Quartiers.
Burgdorf Buchmatt Vision
Burgdorf Buchmatt Vision
Hypokaustum
Im Zuge der regionalen Weiterentwicklung möchte die Gemeinde Meiringen zusätzliche Gewerbestandorte schaffen. Dafür stellt sie in der Kreuzgasse eine Parzelle zur Verfügung. Das entstandene Objekt steht für den Wiedereinzug des Holzbaus, der wegen den Jahrhundertbränden sukzessiv aus dem Dorfgefüge verbannt wurde. Inspiriert von der historischen Reminiszenz des Ortes, schafft das Objekt eine Kohärenz zwischen einer experimentellen Form des Hypokaustums und einer reziproken Tragstruktur.
Hypokaustum
Im Zuge der regionalen Weiterentwicklung möchte die Gemeinde Meiringen zusätzliche Gewerbestandorte schaffen. Dafür stellt sie in der Kreuzgasse eine Parzelle zur Verfügung. Das entstandene Objekt steht für den Wiedereinzug des Holzbaus, der wegen den Jahrhundertbränden sukzessiv aus dem Dorfgefüge verbannt wurde. Inspiriert von der historischen Reminiszenz des Ortes, schafft das Objekt eine Kohärenz zwischen einer experimentellen Form des Hypokaustums und einer reziproken Tragstruktur.
Museum der Zukunft
Das Bernisch Historische Museum überlegt sich, wie es sich in ferner Zukunft weiterentwickeln könnte und ruft zur interdisziplinären Zusammenarbeit auf. Als Reaktion auf die voranschreitende Digitalisierung und Instrumentalisierung der Vernunft, entsteht im Zentrum des Museumsparks ein neuer Ort des Denkens und Handelns. Dieser manifestiert sich als räumliches Resultat einer unterirdischen Fusion aller parkangrenzenden Museen und beteiligt sich als formales Symbol am städtebaulichen Dialog.
Museum der Zukunft
Das Bernisch Historische Museum überlegt sich, wie es sich in ferner Zukunft weiterentwickeln könnte und ruft zur interdisziplinären Zusammenarbeit auf. Als Reaktion auf die voranschreitende Digitalisierung und Instrumentalisierung der Vernunft, entsteht im Zentrum des Museumsparks ein neuer Ort des Denkens und Handelns. Dieser manifestiert sich als räumliches Resultat einer unterirdischen Fusion aller parkangrenzenden Museen und beteiligt sich als formales Symbol am städtebaulichen Dialog.
Museum der Zukunft
Das Bernisch Historische Museum überlegt sich, wie es sich in ferner Zukunft weiterentwickeln könnte und ruft zur interdisziplinären Zusammenarbeit auf. Als Reaktion auf die voranschreitende Digitalisierung und Instrumentalisierung der Vernunft, entsteht im Zentrum des Museumsparks ein neuer Ort des Denkens und Handelns. Dieser manifestiert sich als räumliches Resultat einer unterirdischen Fusion aller parkangrenzenden Museen und beteiligt sich als formales Symbol am städtebaulichen Dialog.
Museum der Zukunft
Das Bernisch Historische Museum überlegt sich, wie es sich in ferner Zukunft weiterentwickeln könnte und ruft zur interdisziplinären Zusammenarbeit auf. Als Reaktion auf die voranschreitende Digitalisierung und Instrumentalisierung der Vernunft, entsteht im Zentrum des Museumsparks ein neuer Ort des Denkens und Handelns. Dieser manifestiert sich als räumliches Resultat einer unterirdischen Fusion aller parkangrenzenden Museen und beteiligt sich als formales Symbol am städtebaulichen Dialog.
Museum der Zukunft
Das Bernisch Historische Museum überlegt sich, wie es sich in ferner Zukunft weiterentwickeln könnte und ruft zur interdisziplinären Zusammenarbeit auf. Als Reaktion auf die voranschreitende Digitalisierung und Instrumentalisierung der Vernunft, entsteht im Zentrum des Museumsparks ein neuer Ort des Denkens und Handelns. Dieser manifestiert sich als räumliches Resultat einer unterirdischen Fusion aller parkangrenzenden Museen und beteiligt sich als formales Symbol am städtebaulichen Dialog.
Museum der Zukunft
Das Bernisch Historische Museum überlegt sich, wie es sich in ferner Zukunft weiterentwickeln könnte und ruft zur interdisziplinären Zusammenarbeit auf. Als Reaktion auf die voranschreitende Digitalisierung und Instrumentalisierung der Vernunft, entsteht im Zentrum des Museumsparks ein neuer Ort des Denkens und Handelns. Dieser manifestiert sich als räumliches Resultat einer unterirdischen Fusion aller parkangrenzenden Museen und beteiligt sich als formales Symbol am städtebaulichen Dialog.
Stabräume 2025
Der Ostring in Bern zählt zu den hochgradig lärmbelasteten Wohnquartieren der Schweiz. Die bestehende Verkehrsführung trennt das Quartier in zwei Teile und hinterlässt eine lebensfeindliche Umgebung. Besonders Fussgänger werden durch die städtebauliche Schneise benachteiligt, die jene überwinden oder die zentral gelegene Tramstation erreichen möchten. In einer ersten Intervention wird die Tramschlaufe zu einem Hortus Conclusus ausformuliert, der in seinem Zentrum einen gefassten Raum für den kurzweiligen Aufenthalt schafft. Im Strassenraum bildet die strukturelle Umfriedung einen neuen Fixpunkt und entlang der Geleise eine qualitative Wartezone aus. In ferner Zukunft soll die Verkehrsführung in den Untergrund verlegt und ein belebtes Quartierzentrum realisiert werden.
Stabräume 2025
Der Ostring in Bern zählt zu den hochgradig lärmbelasteten Wohnquartieren der Schweiz. Die bestehende Verkehrsführung trennt das Quartier in zwei Teile und hinterlässt eine lebensfeindliche Umgebung. Besonders Fussgänger werden durch die städtebauliche Schneise benachteiligt, die jene überwinden oder die zentral gelegene Tramstation erreichen möchten. In einer ersten Intervention wird die Tramschlaufe zu einem Hortus Conclusus ausformuliert, der in seinem Zentrum einen gefassten Raum für den kurzweiligen Aufenthalt schafft. Im Strassenraum bildet die strukturelle Umfriedung einen neuen Fixpunkt und entlang der Geleise eine qualitative Wartezone aus. In ferner Zukunft soll die Verkehrsführung in den Untergrund verlegt und ein belebtes Quartierzentrum realisiert werden.
Stabräume 2025
Stabräume 2050
Der Ostring in Bern zählt zu den hochgradig lärmbelasteten Wohnquartieren der Schweiz. Die bestehende Verkehrsführung trennt das Quartier in zwei Teile und hinterlässt eine lebensfeindliche Umgebung. Besonders Fussgänger werden durch die städtebauliche Schneise benachteiligt, die jene überwinden oder die zentral gelegene Tramstation erreichen möchten. In einer ersten Intervention wird die Tramschlaufe zu einem Hortus Conclusus ausformuliert, der in seinem Zentrum einen gefassten Raum für den kurzweiligen Aufenthalt schafft. Im Strassenraum bildet die strukturelle Umfriedung einen neuen Fixpunkt und entlang der Geleise eine qualitative Wartezone aus. In ferner Zukunft soll die Verkehrsführung in den Untergrund verlegt und ein belebtes Quartierzentrum realisiert werden.
Stabräume 2050
Der Ostring in Bern zählt zu den hochgradig lärmbelasteten Wohnquartieren der Schweiz. Die bestehende Verkehrsführung trennt das Quartier in zwei Teile und hinterlässt eine lebensfeindliche Umgebung. Besonders Fussgänger werden durch die städtebauliche Schneise benachteiligt, die jene überwinden oder die zentral gelegene Tramstation erreichen möchten. In einer ersten Intervention wird die Tramschlaufe zu einem Hortus Conclusus ausformuliert, der in seinem Zentrum einen gefassten Raum für den kurzweiligen Aufenthalt schafft. Im Strassenraum bildet die strukturelle Umfriedung einen neuen Fixpunkt und entlang der Geleise eine qualitative Wartezone aus. In ferner Zukunft soll die Verkehrsführung in den Untergrund verlegt und ein belebtes Quartierzentrum realisiert werden.
Stabräume 2025
Stabräume 2025
Stabräume 2050
Der Ostring in Bern zählt zu den hochgradig lärmbelasteten Wohnquartieren der Schweiz. Die bestehende Verkehrsführung trennt das Quartier in zwei Teile und hinterlässt eine lebensfeindliche Umgebung. Besonders Fussgänger werden durch die städtebauliche Schneise benachteiligt, die jene überwinden oder die zentral gelegene Tramstation erreichen möchten. In einer ersten Intervention wird die Tramschlaufe zu einem Hortus Conclusus ausformuliert, der in seinem Zentrum einen gefassten Raum für den kurzweiligen Aufenthalt schafft. Im Strassenraum bildet die strukturelle Umfriedung einen neuen Fixpunkt und entlang der Geleise eine qualitative Wartezone aus. In ferner Zukunft soll die Verkehrsführung in den Untergrund verlegt und ein belebtes Quartierzentrum realisiert werden.
Utopie
Am Flussrand von Steffisburg stellt ein Objekt den absoluten Anspruch an sich selbst. Es entkoppelt sich komplett von seinem baulichen Kontext und verschmilzt mit der angrenzenden Flusslandschaft und seinem inhärenten Kosmos zu einem zeitlosen Dialog. Sobald diese Raumschwelle übertreten wird, baut sich innerhalb des Subjekts eine Supposition auf, die sich bis zu ihrer Auflösung auf hochgelegener Ebene kontinuierlich verstärkt. Einmal aufgelöst, bleibt nichts anderes mehr übrig, als sich flanierend der Raumerfahrung hinzugeben.
Utopie
Am Flussrand von Steffisburg stellt ein Objekt den absoluten Anspruch an sich selbst. Es entkoppelt sich komplett von seinem baulichen Kontext und verschmilzt mit der angrenzenden Flusslandschaft und seinem inhärenten Kosmos zu einem zeitlosen Dialog. Sobald diese Raumschwelle übertreten wird, baut sich innerhalb des Subjekts eine Supposition auf, die sich bis zu ihrer Auflösung auf hochgelegener Ebene kontinuierlich verstärkt. Einmal aufgelöst, bleibt nichts anderes mehr übrig, als sich flanierend der Raumerfahrung hinzugeben.
Utopie
Utopie
Utopie
Am Flussrand von Steffisburg stellt ein Objekt den absoluten Anspruch an sich selbst. Es entkoppelt sich komplett von seinem baulichen Kontext und verschmilzt mit der angrenzenden Flusslandschaft und seinem inhärenten Kosmos zu einem zeitlosen Dialog. Sobald diese Raumschwelle übertreten wird, baut sich innerhalb des Subjekts eine Supposition auf, die sich bis zu ihrer Auflösung auf hochgelegener Ebene kontinuierlich verstärkt. Einmal aufgelöst, bleibt nichts anderes mehr übrig, als sich flanierend der Raumerfahrung hinzugeben.
Utopie
Am Flussrand von Steffisburg stellt ein Objekt den absoluten Anspruch an sich selbst. Es entkoppelt sich komplett von seinem baulichen Kontext und verschmilzt mit der angrenzenden Flusslandschaft und seinem inhärenten Kosmos zu einem zeitlosen Dialog. Sobald diese Raumschwelle übertreten wird, baut sich innerhalb des Subjekts eine Supposition auf, die sich bis zu ihrer Auflösung auf hochgelegener Ebene kontinuierlich verstärkt. Einmal aufgelöst, bleibt nichts anderes mehr übrig, als sich flanierend der Raumerfahrung hinzugeben.
Utopie
Am Flussrand von Steffisburg stellt ein Objekt den absoluten Anspruch an sich selbst. Es entkoppelt sich komplett von seinem baulichen Kontext und verschmilzt mit der angrenzenden Flusslandschaft und seinem inhärenten Kosmos zu einem zeitlosen Dialog. Sobald diese Raumschwelle übertreten wird, baut sich innerhalb des Subjekts eine Supposition auf, die sich bis zu ihrer Auflösung auf hochgelegener Ebene kontinuierlich verstärkt. Einmal aufgelöst, bleibt nichts anderes mehr übrig, als sich flanierend der Raumerfahrung hinzugeben.
Utopie
Am Flussrand von Steffisburg stellt ein Objekt den absoluten Anspruch an sich selbst. Es entkoppelt sich komplett von seinem baulichen Kontext und verschmilzt mit der angrenzenden Flusslandschaft und seinem inhärenten Kosmos zu einem zeitlosen Dialog. Sobald diese Raumschwelle übertreten wird, baut sich innerhalb des Subjekts eine Supposition auf, die sich bis zu ihrer Auflösung auf hochgelegener Ebene kontinuierlich verstärkt. Einmal aufgelöst, bleibt nichts anderes mehr übrig, als sich flanierend der Raumerfahrung hinzugeben.
Utopie
Am Flussrand von Steffisburg stellt ein Objekt den absoluten Anspruch an sich selbst. Es entkoppelt sich komplett von seinem baulichen Kontext und verschmilzt mit der angrenzenden Flusslandschaft und seinem inhärenten Kosmos zu einem zeitlosen Dialog. Sobald diese Raumschwelle übertreten wird, baut sich innerhalb des Subjekts eine Supposition auf, die sich bis zu ihrer Auflösung auf hochgelegener Ebene kontinuierlich verstärkt. Einmal aufgelöst, bleibt nichts anderes mehr übrig, als sich flanierend der Raumerfahrung hinzugeben.
Floating Wood
An einem fiktiven Ort wird ein räumliches Objekt erstellt, das sich durch ein atmosphärisches Erlebnis Individualisiert. Im Gegensatz zu hochleistungsfähigen Gitterschalen definiert sich die Form durch unregelmässige Knotenpunkte. Die daraus resultierende Formvielfalt nimmt bewusst statische Defizite in Kauf, die mit einem zusätzlichen Materialaufwand ausgeglichen werden können.
Floating Wood
Floating Wood
An einem fiktiven Ort wird ein räumliches Objekt erstellt, das sich durch ein atmosphärisches Erlebnis Individualisiert. Im Gegensatz zu hochleistungsfähigen Gitterschalen definiert sich die Form durch unregelmässige Knotenpunkte. Die daraus resultierende Formvielfalt nimmt bewusst statische Defizite in Kauf, die mit einem zusätzlichen Materialaufwand ausgeglichen werden können.
Kollektivum
Die Agglomeration Langenthal möchte neuartige Wohnformen anbieten. Hierfür stellt sie in Bahnhofsnähe ein Grundstück zur Verfügung, das westseitig von einem Hang und ostseitig durch die Verkehrsinfrastruktur begrenzt wird. Um deren Lärmemissionen gezielt konterkarieren zu können, richtet sich das Objekt entlang der topografischen Gegebenheiten aus. Dadurch entsteht auf der Hangseite eine ruhige Wohnlage und gegen die Strassenseite eine prominente Adressierung. An dieser siedeln sich diverse Gemeinschafts- und Geschäftsräume an, die von allen Hausbewohnern gleichermassen genutzt werden dürfen. Die individuellen Wohneinheiten werden zugunsten des kollektiven Raumes auf das Minimum reduziert.
Kollektivum
Kollektivum
Die Agglomeration Langenthal möchte neuartige Wohnformen anbieten. Hierfür stellt sie in Bahnhofsnähe ein Grundstück zur Verfügung, das westseitig von einem Hang und ostseitig durch die Verkehrsinfrastruktur begrenzt wird. Um deren Lärmemissionen gezielt konterkarieren zu können, richtet sich das Objekt entlang der topografischen Gegebenheiten aus. Dadurch entsteht auf der Hangseite eine ruhige Wohnlage und gegen die Strassenseite eine prominente Adressierung. An dieser siedeln sich diverse Gemeinschafts- und Geschäftsräume an, die von allen Hausbewohnern gleichermassen genutzt werden dürfen. Die individuellen Wohneinheiten werden zugunsten des kollektiven Raumes auf das Minimum reduziert.
Kollektivum
Die Agglomeration Langenthal möchte neuartige Wohnformen anbieten. Hierfür stellt sie in Bahnhofsnähe ein Grundstück zur Verfügung, das westseitig von einem Hang und ostseitig durch die Verkehrsinfrastruktur begrenzt wird. Um deren Lärmemissionen gezielt konterkarieren zu können, richtet sich das Objekt entlang der topografischen Gegebenheiten aus. Dadurch entsteht auf der Hangseite eine ruhige Wohnlage und gegen die Strassenseite eine prominente Adressierung. An dieser siedeln sich diverse Gemeinschafts- und Geschäftsräume an, die von allen Hausbewohnern gleichermassen genutzt werden dürfen. Die individuellen Wohneinheiten werden zugunsten des kollektiven Raumes auf das Minimum reduziert.
Bruchsteinmauer
Der Regionalpark Chasseral will neue Erholungsformen etablieren und stellt für räumliche Interventionen eine Waldlichtung an ruhiger Lage zur Verfügung. Während der ersten Ortsbegehung trat eine historische Steinmauer mit eingewachsenem Baumbestand in den Fokus, die im Norden der Lichtung als physische Raumgrenze fungiert. Innerhalb dieses Schwellenraumes eignet sich das resultierende Objekt dessen Eigenschaften an und unterstreicht diese durch sein Erscheinungsbild. In seinem Innern reduziert es sich auf das Wesentliche und führt einen qualitativen Dialog mit der Aussenwelt und dem eigenen Sein.
Bruchsteinmauer
Der Regionalpark Chasseral will neue Erholungsformen etablieren und stellt für räumliche Interventionen eine Waldlichtung an ruhiger Lage zur Verfügung. Während der ersten Ortsbegehung trat eine historische Steinmauer mit eingewachsenem Baumbestand in den Fokus, die im Norden der Lichtung als physische Raumgrenze fungiert. Innerhalb dieses Schwellenraumes eignet sich das resultierende Objekt dessen Eigenschaften an und unterstreicht diese durch sein Erscheinungsbild. In seinem Innern reduziert es sich auf das Wesentliche und führt einen qualitativen Dialog mit der Aussenwelt und dem eigenen Sein.
Bruchsteinmauer
Der Regionalpark Chasseral will neue Erholungsformen etablieren und stellt für räumliche Interventionen eine Waldlichtung an ruhiger Lage zur Verfügung. Während der ersten Ortsbegehung trat eine historische Steinmauer mit eingewachsenem Baumbestand in den Fokus, die im Norden der Lichtung als physische Raumgrenze fungiert. Innerhalb dieses Schwellenraumes eignet sich das resultierende Objekt dessen Eigenschaften an und unterstreicht diese durch sein Erscheinungsbild. In seinem Innern reduziert es sich auf das Wesentliche und führt einen qualitativen Dialog mit der Aussenwelt und dem eigenen Sein.
Bruchsteinmauer
Der Regionalpark Chasseral will neue Erholungsformen etablieren und stellt für räumliche Interventionen eine Waldlichtung an ruhiger Lage zur Verfügung. Während der ersten Ortsbegehung trat eine historische Steinmauer mit eingewachsenem Baumbestand in den Fokus, die im Norden der Lichtung als physische Raumgrenze fungiert. Innerhalb dieses Schwellenraumes eignet sich das resultierende Objekt dessen Eigenschaften an und unterstreicht diese durch sein Erscheinungsbild. In seinem Innern reduziert es sich auf das Wesentliche und führt einen qualitativen Dialog mit der Aussenwelt und dem eigenen Sein.
Bruchsteinmauer
Bruchsteinmauer
Der Regionalpark Chasseral will neue Erholungsformen etablieren und stellt für räumliche Interventionen eine Waldlichtung an ruhiger Lage zur Verfügung. Während der ersten Ortsbegehung trat eine historische Steinmauer mit eingewachsenem Baumbestand in den Fokus, die im Norden der Lichtung als physische Raumgrenze fungiert. Innerhalb dieses Schwellenraumes eignet sich das resultierende Objekt dessen Eigenschaften an und unterstreicht diese durch sein Erscheinungsbild. In seinem Innern reduziert es sich auf das Wesentliche und führt einen qualitativen Dialog mit der Aussenwelt und dem eigenen Sein.
Bruchsteinmauer
Der Regionalpark Chasseral will neue Erholungsformen etablieren und stellt für räumliche Interventionen eine Waldlichtung an ruhiger Lage zur Verfügung. Während der ersten Ortsbegehung trat eine historische Steinmauer mit eingewachsenem Baumbestand in den Fokus, die im Norden der Lichtung als physische Raumgrenze fungiert. Innerhalb dieses Schwellenraumes eignet sich das resultierende Objekt dessen Eigenschaften an und unterstreicht diese durch sein Erscheinungsbild. In seinem Innern reduziert es sich auf das Wesentliche und führt einen qualitativen Dialog mit der Aussenwelt und dem eigenen Sein.